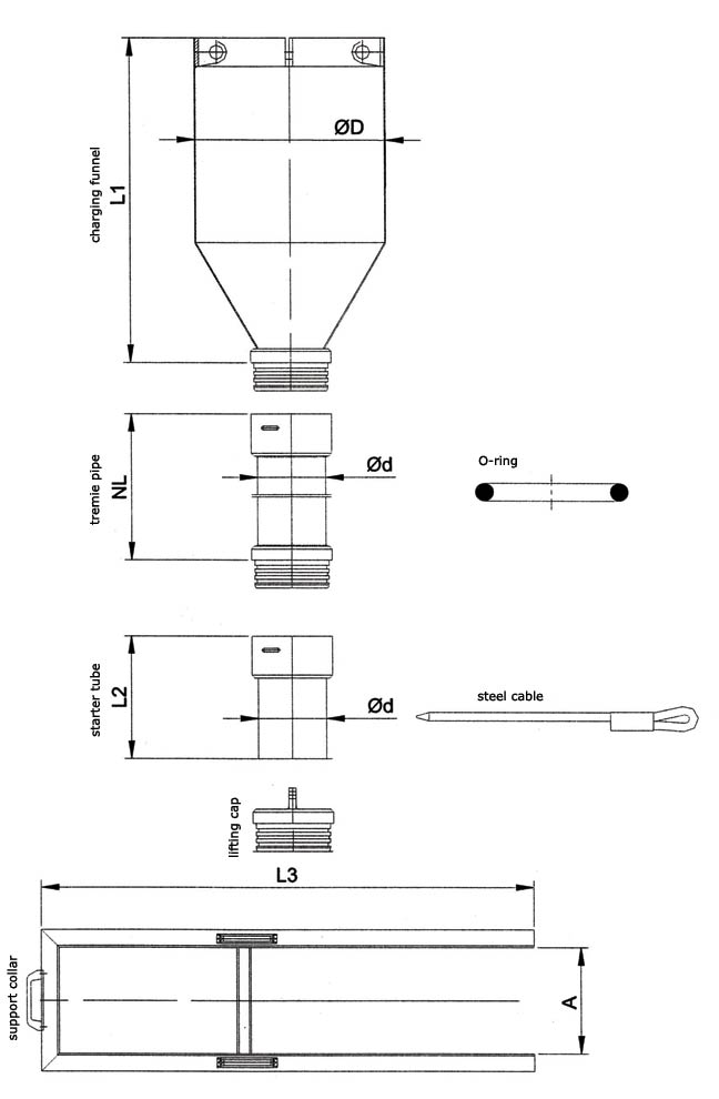
Tremie PipesOur tremie pipes are available in following diameters:
We reserve the right to change technical specifications without prior notice.
|
Tremie PipesOur tremie pipes are available in following diameters:
We reserve the right to change technical specifications without prior notice.
|